各部门、二级学院:
我校2021级新生将集中于9月10日至9月11日来校报到,为缓解校园交通压力,确保新生报到工作有序进行,结合疫情防控要求,现将有关事项通知如下:
1.居住靳江明珠小区的教职工,请勿驾车进入校园;其他教职工尽量不驾车进入校园,提倡低碳绿色文明出行。
2.教职工进入校园,请主动出示胸卡牌;无胸卡牌者,请提前出示健康码。
3.送新生到校的私家车、其他社会车辆禁止进入校园。
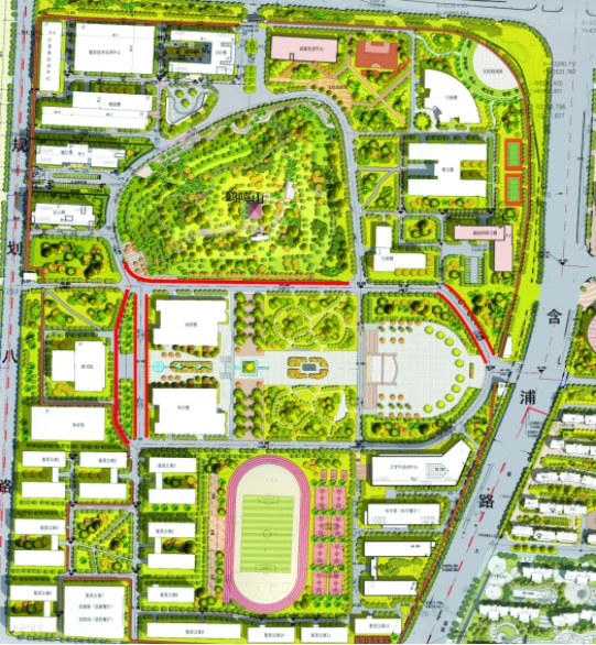
4.校园内临时划定禁停区域(详见附件),请勿停车;请服从安保人员的指挥,将车辆停放在划定车位里。
请广大教职工理解支持配合新生报到期间校园交通管理有关要求,由此带来的不便,敬请谅解与支持。
附件:校园禁停区域示意图
yabocom(中国)官方网站
2021年9月9日
附件
2021级新生报到期间校园禁停区域示意图

图中东大门右边至行政楼两侧、长丰路靠鹤鸣山一侧、中联路两侧、图书馆前坪两侧红色标记部分为禁停区域